豊橋市議の長坂です。
初めてこの絵を見たとき、驚きました。
さて、新しく作成した市政報告チラシ「豊橋だいすきvol.08」

こちらに記載した「約30年前豊橋市が描いた『豊橋公園整備イメージ』」
の詳細をご紹介します。
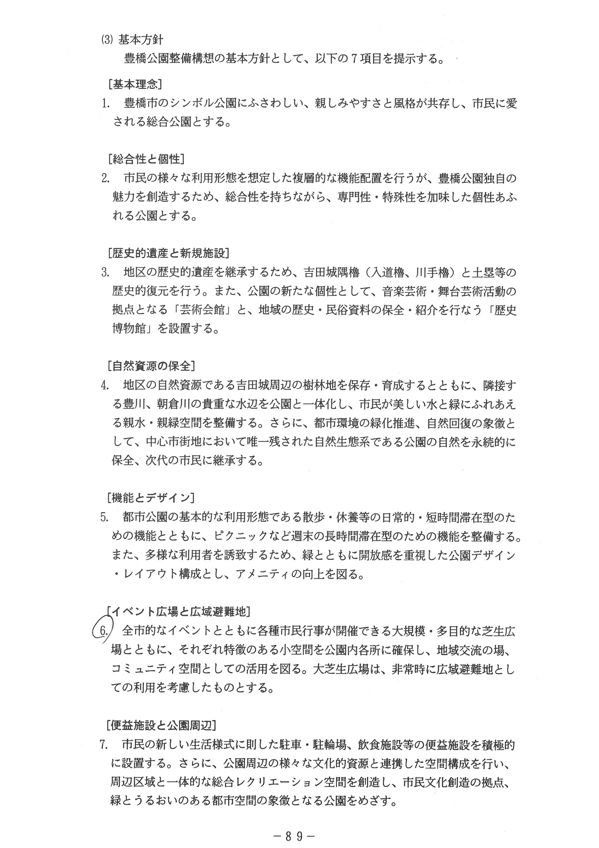
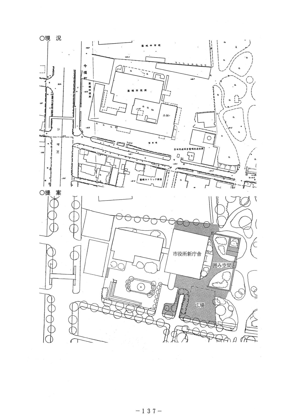
このイメージは平成3年3月、高橋アキラ市政で策定された
「豊橋公園整備構想策定調査 報告書」からです。



この構想では、体育施設の総合スポーツ公園への移転が示されており、
5年後の平成8年3月(高橋市政の最終年)には、
「豊橋総合スポーツ公園基本設計」も策定されていました。



これが30年前に豊橋市が描いた公園像であり、これを基に、
豊橋公園:静の公園、総合スポーツ公園:動の公園、
というご意見を今でも耳にします。
以下に、豊橋公園整備構想の主要ページ
(3ページまでと、74ページ以降)を掲載します。
下記URLにPDFでまとめたものもご用意させていただきました。
https://drive.google.com/drive/
では!
(関連)
豊橋公園・吉田城・新アリーナをテーマに、市内各所10~11月に28回、市政報告・座談会やります!
http://nagasakanaoto.blog.jp/220909.html















































































以上です。
最後までご覧(スクロール)くださり、ありがとうございます。
初めてこの絵を見たとき、驚きました。
さて、新しく作成した市政報告チラシ「豊橋だいすきvol.08」

こちらに記載した「約30年前豊橋市が描いた『豊橋公園整備イメージ』」
の詳細をご紹介します。
このイメージは平成3年3月、高橋アキラ市政で策定された
「豊橋公園整備構想策定調査 報告書」からです。



この構想では、体育施設の総合スポーツ公園への移転が示されており、
5年後の平成8年3月(高橋市政の最終年)には、
「豊橋総合スポーツ公園基本設計」も策定されていました。



これが30年前に豊橋市が描いた公園像であり、これを基に、
豊橋公園:静の公園、総合スポーツ公園:動の公園、
というご意見を今でも耳にします。
以下に、豊橋公園整備構想の主要ページ
(3ページまでと、74ページ以降)を掲載します。
下記URLにPDFでまとめたものもご用意させていただきました。
https://drive.google.com/drive/
では!
(関連)
豊橋公園・吉田城・新アリーナをテーマに、市内各所10~11月に28回、市政報告・座談会やります!
http://nagasakanaoto.blog.jp/220909.html















































































以上です。
最後までご覧(スクロール)くださり、ありがとうございます。