豊橋市議の長坂です。
プロジェクタがほしいです。
さて、本日議会(建設消防委員会)があり、

まちなか図書館(仮)に関する最新情報が公開されました。
■
まず、まちなか図書館についておさらい。

場所はこちら。

新しくできるこーんなビルの2・3階に入ります。
(ビル自体は主にマンションです)
ぼくの好きなコンセプトは、

ビルの設計(形状)が変更されたことに伴い、
図書館の図面・レイアウトも変更になりました。
2階
ビフォー

アフター

イメージパース含む

■
3階
ビフォー

アフター

イメージパース含む

全体として、縦長だったのが正方形に近くなったので、
同じ面積でも、密度高くコンパクトにまとまり、よくなった印象です。
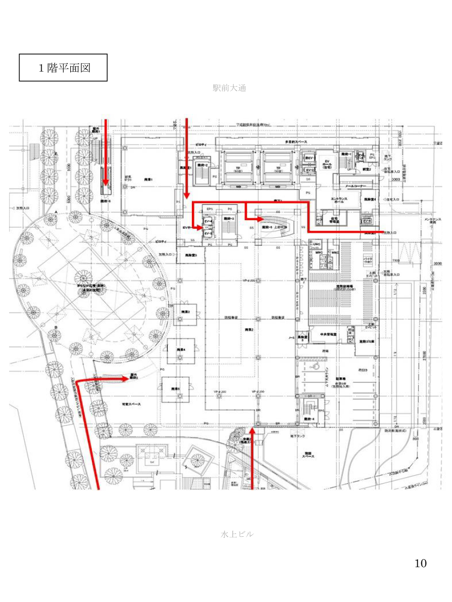
地上(1階)・地下からの導線


前にどなたかに、
「地下(公共駐車場)とはつながらないのではないか・・・」
と言った記憶があるのですが、こめんなさいつながります。
■
今日の委員会では、3Dイメージの紹介もありました。
委員会でプロジェクタ使っての説明は、ぼくもはじめての経験で、
担当部署の気合いが感じられます。
委員会終了後に撮影させてもらいました。
2階(北(駅前大通)が左側)

水上ビル側(南)から望む

シンボルとなる(?)観覧大階段

観覧席を兼ねて、正面には大画面orスクリーン(予定)

3階

こちらの3Dイメージが見られる、まちなか図書館の説明会が
下記日程でありますので、ご関心いただける方はぜひ!
プロジェクタがほしいです。
さて、本日議会(建設消防委員会)があり、

まちなか図書館(仮)に関する最新情報が公開されました。
■
まず、まちなか図書館についておさらい。

場所はこちら。

新しくできるこーんなビルの2・3階に入ります。
(ビル自体は主にマンションです)
ぼくの好きなコンセプトは、

街に広がる図書館 - Library to the City -■
ビルの設計(形状)が変更されたことに伴い、
図書館の図面・レイアウトも変更になりました。
2階
ビフォー

アフター

イメージパース含む

■
3階
ビフォー

アフター

イメージパース含む

全体として、縦長だったのが正方形に近くなったので、
同じ面積でも、密度高くコンパクトにまとまり、よくなった印象です。
地上(1階)・地下からの導線


前にどなたかに、
「地下(公共駐車場)とはつながらないのではないか・・・」
と言った記憶があるのですが、こめんなさいつながります。
■
今日の委員会では、3Dイメージの紹介もありました。
委員会でプロジェクタ使っての説明は、ぼくもはじめての経験で、
担当部署の気合いが感じられます。
委員会終了後に撮影させてもらいました。
2階(北(駅前大通)が左側)

水上ビル側(南)から望む

シンボルとなる(?)観覧大階段

観覧席を兼ねて、正面には大画面orスクリーン(予定)

3階

こちらの3Dイメージが見られる、まちなか図書館の説明会が
下記日程でありますので、ご関心いただける方はぜひ!
【とき/ところ】・第1回平成30年2月24日(土曜日)午前10時~11時会場/ 豊橋市中央図書館(豊橋市羽根井町48番地)外部サイトへのリンク・第2回平成30年2月25日(日曜日)午前10時~11時会場/ 穂の国とよはし芸術劇場「プラット」(西小田原町)外部サイトへのリンク・第3回平成30年2月28日(水曜日)午後7時~8時会場/豊橋市役所東121会議室(東館)・第4回平成30年3月 1日(木曜日)午後7時~8時会場/ 穂の国とよはし芸術劇場「プラット」(西小田原町)外部サイトへのリンク【対象/申込】対象: 高校生以上